Milpa
En el corazón de Holbox, donde la selva baja se encuentra con la arena y el ritmo pausado de la isla, surge Milpa como una pieza arquitectónica que dialoga con su entorno más que imponerse sobre él. Concebido íntegramente en bambú, el proyecto explora las posibilidades de este material como estructura, piel y experiencia espacial, dando forma a un organismo vivo que respira, filtra la luz y se integra con la vegetación existente.
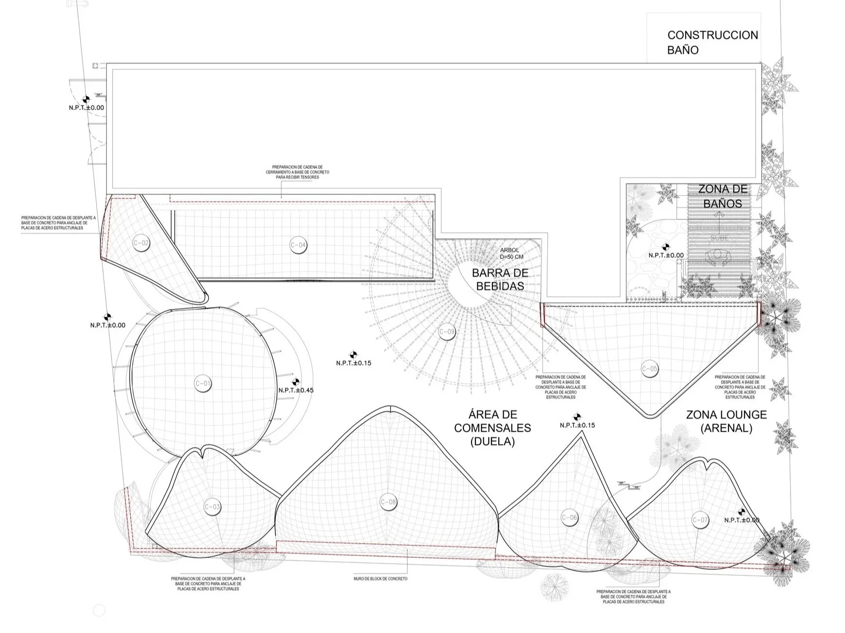
La arquitectura de Milpa se despliega a partir de gestos curvos y envolventes que evocan refugios orgánicos, generando una transición suave entre el exterior y el interior. Más que un restaurante, el espacio se percibe como una extensión del paisaje: una secuencia de sombras, texturas y transparencias donde la materialidad natural construye una atmósfera cálida y sensorial.
El uso del bambú no solo responde a una lógica estética y estructural, sino a una postura consciente frente al impacto ambiental de la construcción. Como material regenerativo, el bambú destaca por su rápido crecimiento, su capacidad de capturar carbono y su bajo requerimiento energético en comparación con materiales convencionales. Su implementación en Milpa plantea una arquitectura que no solo reduce su huella, sino que abre la posibilidad de integrarse a ciclos más amplios de regeneración ecológica.
Su ligereza permite grandes claros y formas libres, mientras que su ensamblaje artesanal revela un proceso constructivo honesto, profundamente ligado al contexto tropical. En este sentido, Milpa no busca protagonismo, sino pertenencia: es arquitectura que se enraíza, que se adapta al clima y que celebra lo local.
Aquí, la experiencia gastronómica comienza desde el espacio mismo, donde cada elemento —la luz tamizada, la ventilación cruzada, la escala humana— construye una narrativa que conecta al visitante con la esencia del lugar.
Alcance:
-Desarrollo de proyecto conceptual, arquitectónico, ejecutivo, proyecto 3D, renders
2022
Interor